3 LOCALI CON TERRAZZO

3 LOCALI CON TERRAZZO

233.100 €
144 m2
2 Camere
1 Bagni
Codice
te3
Città
Casorate Primo
Categoria
3 locali
Locali
3
Mq Giardino
44
Piano
Terra
Classe energetica
A1
Stato Immobile
In Costruzione
Grado
Signorile
Lati Liberi
1
Giardino
No
Tipo Soggiorno
Soggiorno
Tipo Cucina
Angolo Cottura
Riscaldamento
Conta Calorie
Tipo Riscaldam.
Caldaia a Condensazione
Tipo Impianto
Pavimento
Acqua Calda
Caldaia
Raffrescamento
Split
Infissi
PVC Triplo Vetro
Serramenti
Nuovo
Persiana
Tapparella PVC
Accesso Disabili
Nessuna Barriera
Accesso interno disabili
Pieno accesso
Destinato a residenti
Si
Accessori
Ascensore, Impianto Fotovoltaico, Porta Blindata, Tripli Vetri
In fase di ULTIMAZIONE palazzina denominata “Residenza Il Quadrifoglio” di n. 18 unità immobiliari e n. 4 mansarde all’ultimo piano, oltre a box al piano interrato. L’accesso principale sarà da Via Marconi, mentre l’accesso carrabile sarà da Via G. Di Bella.
Ultimi trilocali, in classe energetica A.
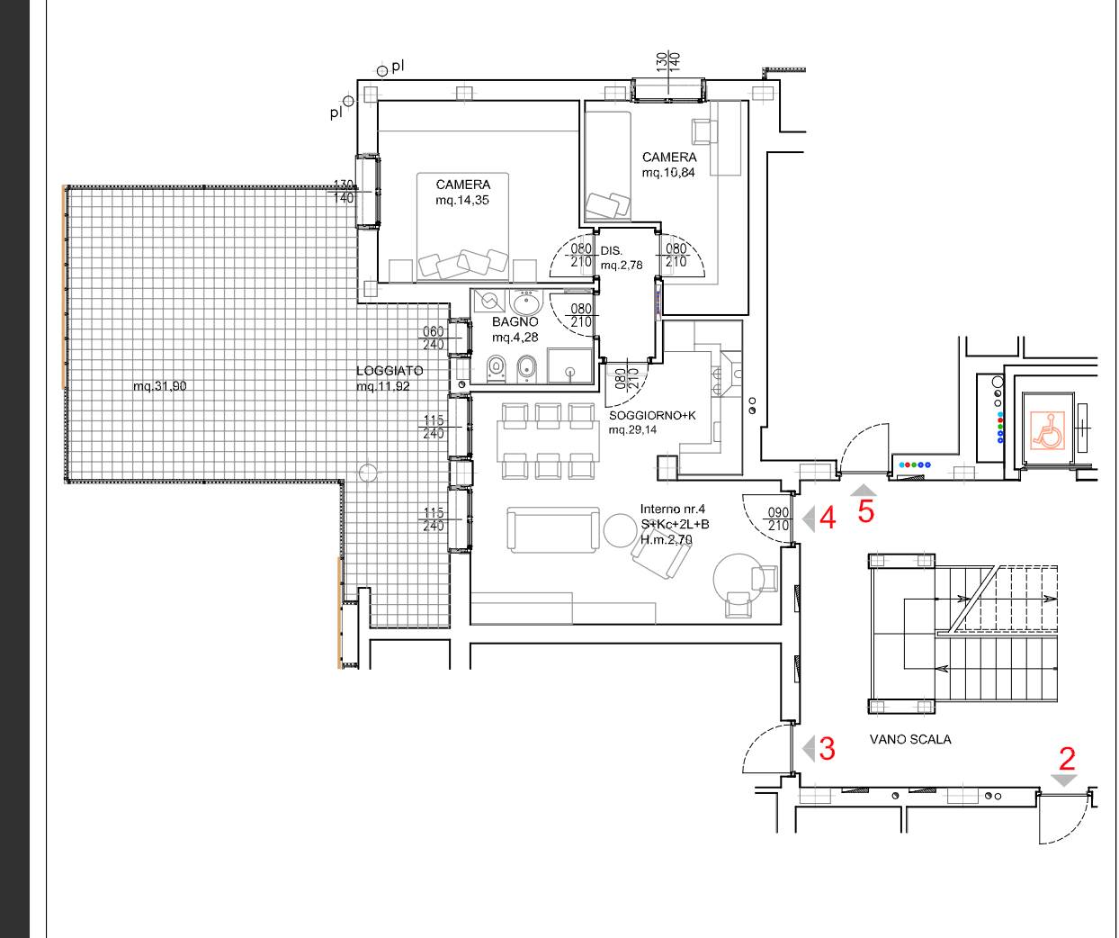
Nel dettaglio: 3 locali di 144mq situato al piano terra con terrazzo parzialmente loggiato di 44 mq. Ingresso, soggiorno con accesso al terrazzo di ampia metratura, angolo cottura, bagno con doccia, camera matrimoniale, cameretta e ripostiglio. Possibilità di box a 24.500,00 euro e di posto auto a 7650,00 euro
I serramenti esterni saranno in PVC, con anta a ribalta. Le porte interne potranno essere scelte in base alle proprie esigenze tra diversi colori. I pavimenti degli alloggi saranno del materiale e tipologia a scelta del cliente
Il sistema di riscaldamento è a pannelli radianti a pavimento, mentre il raffrescamento estivo sarà emesso dagli split presenti nell’appartamento.
L’impianto fotovoltaico con potenza di 12,90 Kw, posizionato sul tetto, alimenterà le utenze comuni del condominio. Tutti gli appartamento avranno la predisposizione per l’impianto di allarme volumetrico interno.
Tutte gli appartamenti potranno essere personalizzati in base alle esigenze degli acquirenti.

Info per appuntamenti: 389.4269058 oppure 331.7523769 vendite@immobiliaredonna.it

Video

Mappa

Via Marconi 42, Casorate Primo (PV)

Condividi

Cookie preference